
现代简约风格其实说白了就是简单风格颜色需要很丰富因为它追求的是简单的生活品质而非富丽堂皇的装饰所谓的简单并不是什么都不做而是用最简单的东西搭配在一起制造出不一样的氛围感觉出来
本案介绍的是一套来自于北京的房子实际面积110平米做出来的简约风格全屋即简单又有品位让人走进去就心生欢喜细节之处尽显品位真正做到了简约而不简单

设计简介
装修风格现代简约风格
实际面积110
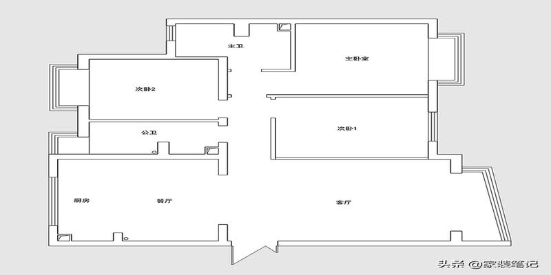
空间格局2房2厅
设计师千里莺
项目位置北京市通州区世纪星城
装修造价预算费用2578W
01

这是一套老房子旧房改造整体的户型结构还是可以的南北通透通风效果和采光效果一点都不差能在寸土寸金的北京买到这样的户型还是比较幸运的
02

通过对业主的充分了解和沟通之后整体的方案做了这样几点设计
1主卧室卫生间没有设计淋浴房只保留了蹲便和洗脸盆在和主卧床之间做了一个小衣帽间出来
2小孩房没有做那么大预留了一部分出来做了个开放式的书房
3主卧室的门洞顺势移动了一点多做了两组柜子出来增加了家里面的收纳功能
4厨房做了半开放式的设计这样餐厅和厨房会显得更加宽敞一点
5除了主卧室和小孩房之外因为是三代人一起居住所以还有个卧室就是老人房了
03

玄关区域由于没有形成独立的空间所以看上去很宽敞舒适给了入户极大的视觉效果和餐厅之间的玻璃造型和特别加上装饰端景让这个区域显得更加的有趣味性
04



客厅整体呈现出一种黑白灰的高级感电视墙也做了柜子造型这样即保证了美观度又保证了实用性毕竟在寸土寸金的北京合理利用好每一寸空间显得格外重要了顶面也打破了常规的吊顶设计直接在原顶刷白的基础上装上了具有工业属性的灯具显得比较独特有个性沙发墙更是简单就挂了一幅画
05


来到餐厅空间给人的第一感觉就是实用在餐桌椅的两边都各做了一组柜子由于厨房面积不大所以把双开门冰箱放到餐厅里面显得就更为合适有一组柜子还增加了台面平时洗水果就可以直接到这里不用进厨房了
06



主卧室呈现一派简约之意从硬装到软装上无不在体现着简单的精致床头背景这里选择了茶镜的搭配更为精致效果添砖加瓦床尾的角落摆放了一盆绿植给卧室带来一片生机勃勃的景象床尾还挂了一幅画一幅很有品位的艺术装饰画
07

利用主卧室衣帽间很好地将床和主卫的门隔开在风水上面发挥了作用白色的衣柜柜门没有做拉手看上去干净整洁
08

这个小书房相当于是处在过道空间里面一个敞开式的空间平时在这里辅导小孩子写作业或者办公都比价方便靠卫生间那面墙还做了一组嵌入式的书柜实用性满满
 
                                     
                                     
                                     
                                     
                                     
                                     
                     
                     
                     
                     
                     
                     
                     
                    